Cerrar

955 796 000 Centralita

Noticias

Alcalá contará con una nueva zona verde en el entorno del centro urbano

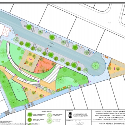
El nuevo espacio se encuentra en la calle Profesor Esteban Palacios y la Plaza Francisco Rodríguez Cordero y responde a la necesidad de incrementar las zonas verdes, la masa forestal de la ciudad, y cumplir con los compromisos de sostenibilidad y lucha contra el cambio climática.

Fecha: 23/10/2025

El Ayuntamiento de Alcalá de Guadaíra a través de la Delegación de Monumento Natural, Medioambiente y Sostenibilidad ha presentado el proyecto de una nueva zona ajardinada y parque urbano en la calle Profesor Esteban Palacios y la Plaza Francisco Rodríguez Cordero. La intervención ha sido presentada por la delegada municipal de Monumento Natural, Medioambiente y Sostenibilidad, Luisa Campos y el responsable del Área de Identidad y delegado municipal de Cultura y Patrimonio, Christopher Rivas.

Luisa Campos, ha explicado que “este solar de propiedad municipal de 3.092 metros cuadrados, actualmente sin uso, se convertirá en una nueva zona verde de uso público pensada para la convivencia y el bienestar de toda la ciudadanía”. El proyecto cuenta con un presupuesto total de 713.161 euros, y Campos confía en que a principios de 2026 las obras sean licitadas para que a finales de ese año puedan estar finalizadas.

Más masa forestal en el Centro

El nuevo espacio contará con zonas verdes con masa forestal, juegos infantiles, zona de esparcimiento canino, nuevo mobiliario urbano y pérgolas para sombra. La creación de la nueva zona lleva aparejada la instalación de nuevo alumbrado público eficiente de luces led y un nuevo sistema de riego inteligente que propiciará el ahorro energético y de agua.

Luisa Campos, ha explicado que “se trata de una actuación que responde a dos necesidades fundamentales, por un lado, ampliar el número de espacios verdes y la masa forestal de Alcalá, y en segundo lugar, que es una intervención enmarcada en el compromiso de mejorar la calidad del aire, fomentar la biodiversidad y promover estilos de vida saludables”.

La titular responsable de Medioambiente ha recalcado que “estos trabajos serán beneficiosos para los vecinos y vecinas de Alcalá ya que, se va a transformar un solar degradado, en un nuevo parque. Además, de fomentar la sostenibilidad ambiental al contar con un sistema de riego eficiente optimizado.

Por su parte, el responsable del Área, Christopher Rivas ha enfatizado en que este nuevo proyecto, “no sólo responde a una necesidad de espacios verdes, sino que se enmarca dentro de la estrategia de ciudad sostenible. Para finalizar, ha recalcado que “queremos una Alcalá que avance con pasos firmes hacia la eficiencia energética, la reducción de la huella de carbono y la regeneración de espacios urbanos, además de la lucha contra el cambio climático. Una apuesta decidida por un futuro más verde y habitable en el que la innovación y la eficiencia se unen para transformar la ciudad, y en coherencia con los principios políticos acordados en el Acuerdo de Gobierno y el compromiso alcanzado con la ciudadanía”.

Este sitio web usa cookies propias y de terceros para mejorar nuestros servicios y recoger información sobre su navegación. Si pulsa "aceptar" o continua navegando consideraremos que admite el uso e instalación en su equipo o dispositivo. Encontrará más información en nuestra política de cookies.